![]() |
| ▲ 민원주차장 |
양산시 웅상출장소는 오는 2021년 1월 1일부터 청사 주차장 일부 구역을 유료화한다.
주차공간 부족으로 문제되어 왔던 웅상출장소는 올해 9월 사업비 68,000천원을 들어서 청사 출입구 1개소에 무인주차시스템을 설치했으며, 3개월 동안 시범운영기간을 거쳤다.
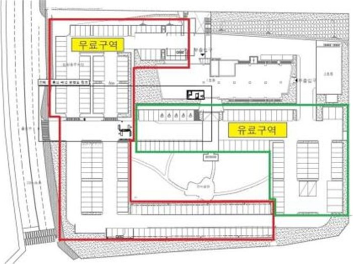
유료화 시행으로 번호판 없는 차량의 장기주차 등을 막아 방문민원인에게 편리한 주차공간을 제공할 예정이며, 방문민원인뿐만 아니라 양산시민에게도 주차장을 개방하기 위해 주차장을 두 구역으로 나누어 전체 286면 중 173면은 무료로 운영한다.
유료운영 시간은 평일 오전 9시부터 오후 6시까지이며, 평일 저녁과 토·일·공휴일은 무료이다. 또 주차요금은 최초 1시간 무료에 1시간 초과 시 15분당 200원이 부과되며, 무료운영 시간에 입차하더라도 유료운영 시간을 경과할 경우 초과분만큼 요금이 부과되며 결제는 신용카드, 체크카드, 교통후불카드로만 가능하다.
또한, 장애인, 국가유공자, 경형자동차, 저공해자동차, 장기기증등록자, 경남i다누리카드 소지자는 출차 시 증빙하면 50% 감면된 요금으로 이용 가능하며, 민원처리 지연으로 인하여 무료 1시간 초과하였을 경우 담당부서의 확인을 받으면 초과 시간만큼 주차요금이 면제된다.
웅상출장소 관계자는 “무인주차시스템 설치로 방문민원인 주차장 이용에 편의를 제공할 수 있을 것이라 기대하며, 민원 처리지연으로 무료 1시간이 초과하더라도 담당자의 확인을 받으면 초과된 시간 만큼 주차요금이 면제되기 때문에 주차장 이용에 불편이 없을 것”이라고 밝혔다.
[ⓒ 시민일보. 무단전재-재배포 금지]













